Case Study
Foston Hall
Leicestershire
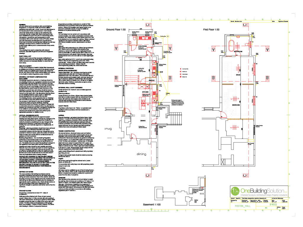
Refurbishment and conversion of stable block and living sleeping accommodation.
Mr and Mrs Roe commissioned One Building Solution Ltd to carry out architectural design for a proposed refurbishment and conversion of a existing 19th Century coach house with living accommodation to a extended kitchen with pet areas with increased living and sleeping accommodation to the first floor. Although the building had been delisted by the previous owner, One Building Solution Ltd, provided the client with full and detailed working drawings for the local authority conservation and planning approval along with Building Regulations consent.
On successfully gaining the required approvals, One Building Solution Ltd continued to provide.
Our approach
We worked on and delivered a number of scheme proposals which we presented to the local planning authority under planning consultation. On agree with one of three schemes it was submitted for planning approval and was successfully gained.
Working and detailed drawings were then issued to the client to obtained quotations. Following the appointment of the Contractor we continued to sport our client in providing further interior design support, technical advice and workmanship monitoring.
Client benefits
- Sector knowledge and expertise were part of the advice provided to the client.
- Preliminary scheme designs discussions with the planners enabled the client to agree on a scheme with the comfort that planning approval is likely to be given
- Support through the planning process
- The combined role of Designer and Monitoring Surveyor provided the
- client with consistent technical advice and professional consultancy
Contact Us to find out more
Foston Hall





